38
$2,399,000 Sale
Listed 14 hours ago
201 908 Keith Road
· 2
· 3
· 2
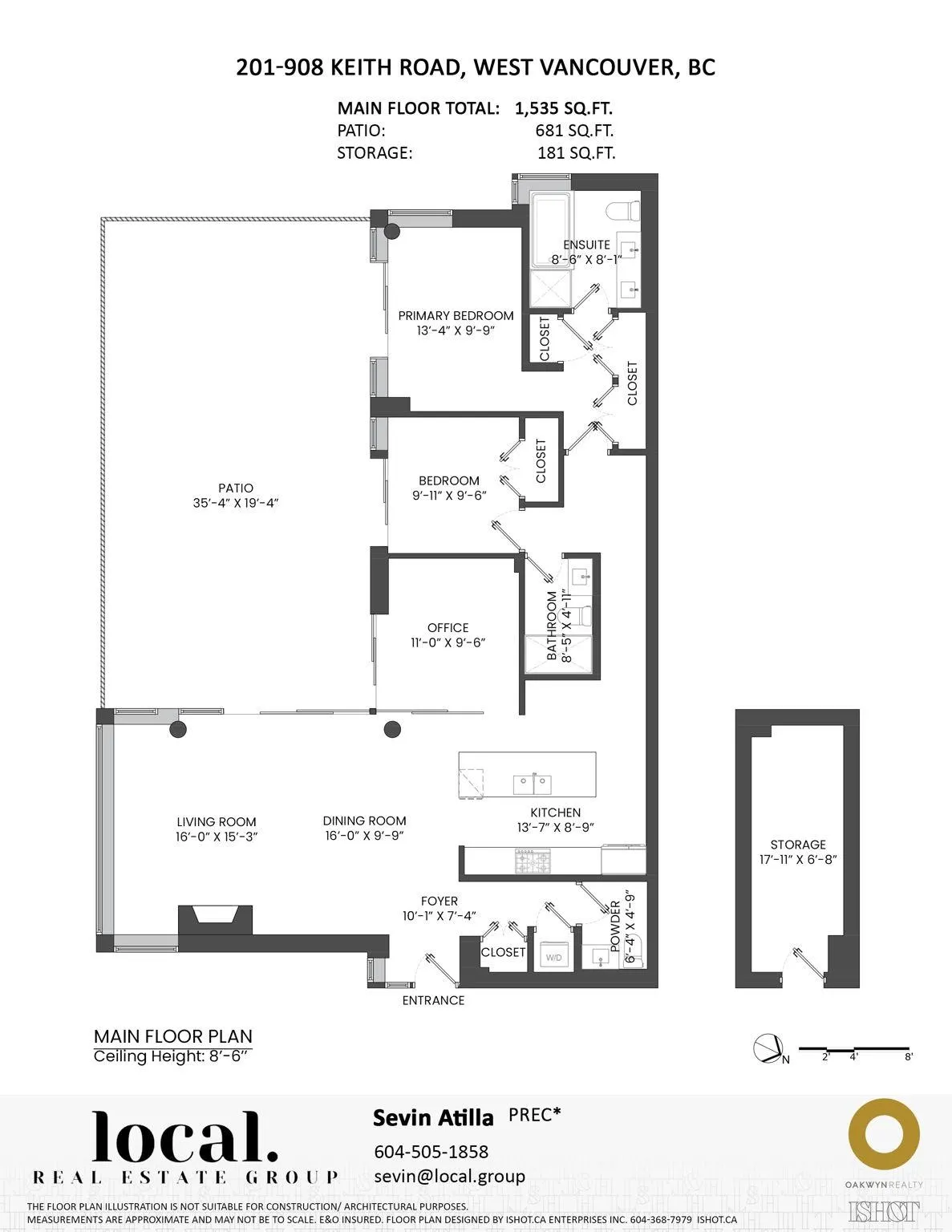
· 1535
Key Facts
Key facts for 201 908 Keith Road
Property Type
Condo
Parking
2 garage, 2 parking
MLS #
R3054440
Size
1535 sqft
Basement
None
Listed on
-
Lot size
-
Tax
$6,631.77 /yr
Days on Market
-
Year Built
2014
Maintenance Fee
$1,612.42 /mo
Description
Welcome to Evelyn Cliffside 3, this sophisticated, south facing West Coast Modern residence in West Vancouver features engineered oak floors, Sub-Zero & Miele appliances, in home automation, forced air heating and cooling, and a sprawling 681 sqft patio for seamless indoor/outdoor entertaining year ...round. Enjoy quick access to Ambleside Beach, ocean trails, Cypress Mountain, and Park Royal. This residence offers a rare private 2 car side-by-side garage and 2 storage lockers. A blend of serenity and style in an iconic North Shore building. Open house: Saturday and Sunday 2-4.
Similar Properties (No results)
Room Types
Living Room
-
Dimensions 15'3 x 16'0
244 sqft
Dining Room
-
Dimensions 9'9 x 16'0
156 sqft
Kitchen
-
Dimensions 8'9 x 13'7
118.85 sqft
Courtesy of: Oakwyn Realty Ltd.